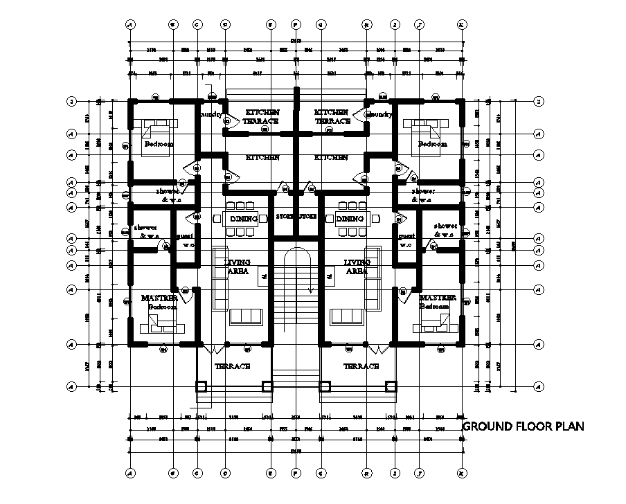
18x15m Ground floor plan of residential building is given in this Autocad drawing model. Download the Autocad file.
Description
18x15m Ground floor plan of residential building is given in this Autocad drawing model. This is G+2 house plan. In each floor two houses are available. In the ground floor master bedroom with attached bathroom, & water closet for guest, kid’s room with attached shower & water closet, laundry, kitchen terrace, kitchen, living area, dining area, and store room are available. The above one is same for another home. For more details download the Autocad drawing file. Thank you for downloading the Autocad file and other CAD program files from our website.
Uploaded by:

