LOGIN
HOME
CATEGORIES
UPLOAD FILE
PRICING
HOUSE PLAN
ABOUT US
CONTACT US
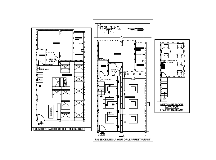
Restaurant ceiling design cad files
Home
Categories
Interior Design
False Ceiling Design
Restaurant ceiling design cad files
Uploaded by:
K.H.J
Jani
View Profile
View Profile
Description
Restaurant ceiling design cad files. include all interiors detail.
File Type:
DWG
File Size:
54 KB
Category::
Interior Design
Sub Category::
False Ceiling Design
type:
Gold
Uploaded by:
K.H.J
Jani
View Profile
Download
Add to libary
find Latest
Related
Files