Plumbing layout of 18x18m residential building plan is given in this Autocad drawing model.Download now.
Description
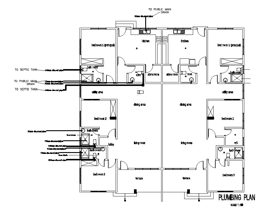
Plumbing layout of 18x18m residential building plan is given in this Autocad drawing model. This is single story house plan. In these plumbing connections from kitchen, utility area, bathroom and water closet are mentioned. In each floor there are two houses available with 3BHK. In these houses living area, kitchen, master bedroom with attached bathroom, common water closet, store room, utility area, dining area, kid’s room with attached bathroom, lobby, guest room with attached toilet and terrace is available. For more details download the autocad drawing file. Thank you for downloading the Autocad file and other CAD program files from our website.
File Type:
DWG
File Size:
4.7 MB
Category::
Dwg Cad Blocks
Sub Category::
Autocad Plumbing Fixture Blocks
type:
Gold
Uploaded by:

