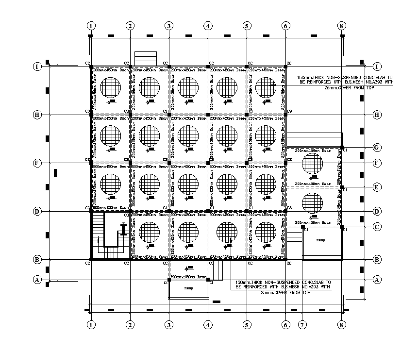
Column and beam layout of 14x19m work shop building in this Autocad drawing file. Download now.

Column and beam layout of 14x19m work shop building in this Autocad drawing file.  Download now.
Profile

Uploaded by:

Pavithra

Description
Column and beam layout of 14x19m work shop building in this Autocad drawing file. Reinforcement details are given. This is G+1 work shop plan. Work shop, general office, workers changing room, store room, lobby, shower & water closet for workers, entrance platform, and visitor’s water closet are available in this ground floor. Waiting terrace, secretary office, director office with attached water closet & shower are available in this first floor. For more details download the Autocad drawing file. Thank you for downloading the Autocad file and other CAD program files from our website.
Profile

Uploaded by:

Pavithra

find Latest

Related Files

WhatsApp Chat