Beam on grid line details are given for 23x14m apartment building is given in this Autocad drawing file. Download now.
Description
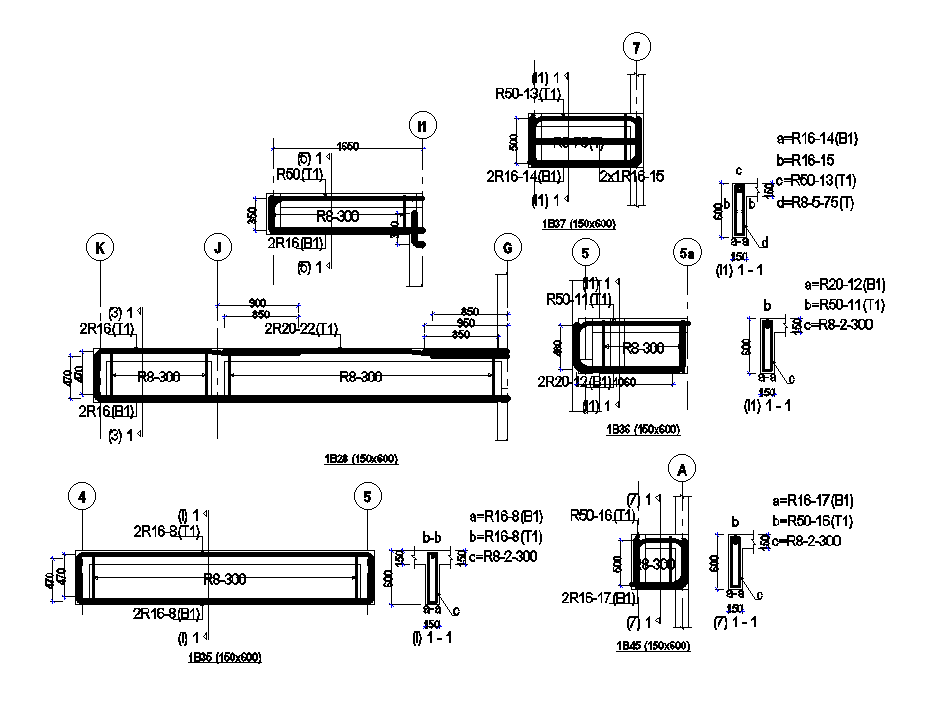
Beam on grid line details are given for 23x14m apartment building is given in this Autocad drawing file. There are six roof beam details given. This is G+2 apartment building. The length, breadth, section dimension, and reinforcement detail of footing are mentioned in this drawing model. For more details download the Autocad drawing file. Thank you for downloading the Autocad file and other CAD program files from our website.
Uploaded by:

