22x22m first floor house plan is given in this Autocad drawing file. Download now.
Description
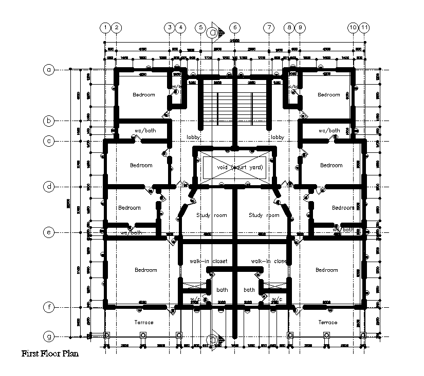
22x22m first floor house plan is given in this Autocad drawing file. This is G+1 house plan. In each floor two houses are available. In the first floor, terraces, master bedroom with attached toilet, study room, guest room with attached bathroom, two kid’s room with attached bathrooms are available. For more details download the Autocad drawing file. Thank you for downloading the Autocad drawing file and other CAD program files from our website.
Uploaded by:

