A section view of 22x14m twin house plan is given in this Autocad drawing file. Download now.
Description
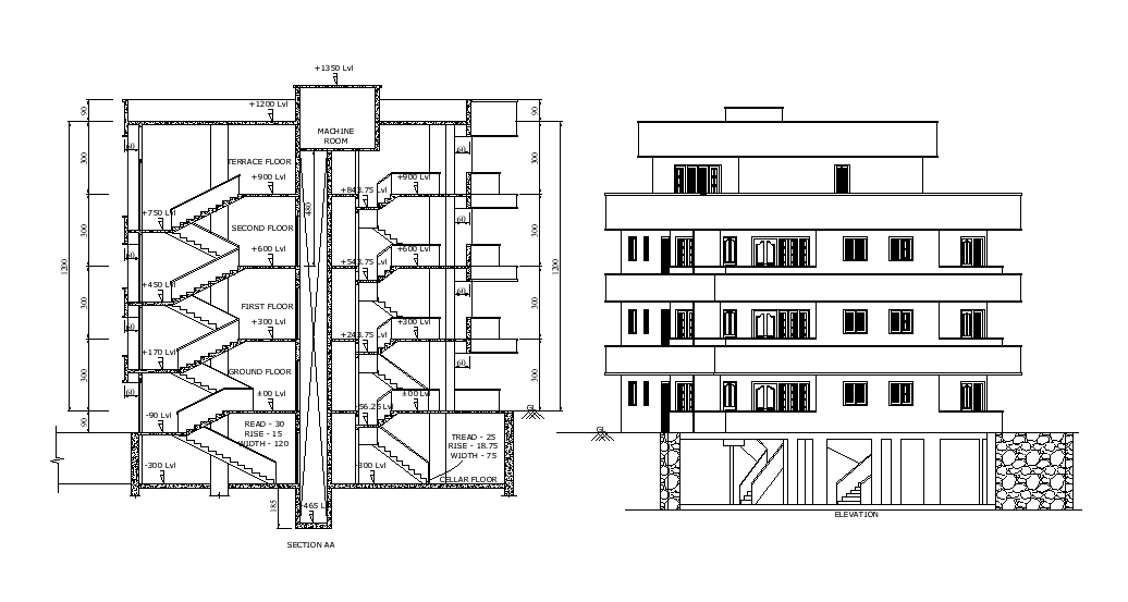
A section view of 22x14m twin house plan is given in this Autocad drawing file. The total height of the building is 12m. This is G+3 apartment building. In each floor dining area, drawing room, kitchen, sit out, master bedroom with with attached toilet and sit out, kid’s room with attached bathroom & balcony and other details are available. For more details download the Autocad drawing file. Thank you for downloading the Autocad drawing file and other CAD program files from our website.
Uploaded by:

