168x80m mercedes indacochea school plan is give in this Autocad drawing file. Download now.
Description
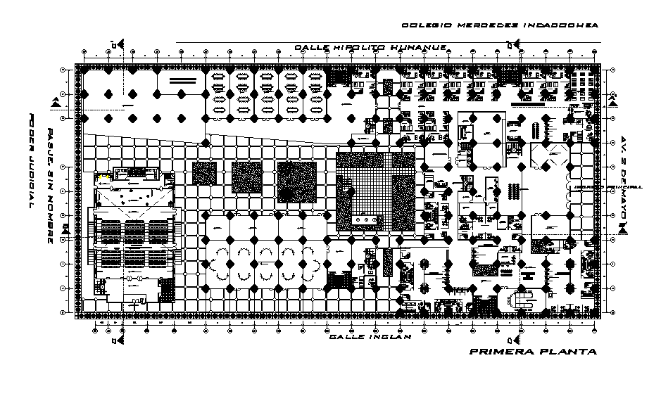
168x80m mercedes indacochea school plan is give in this Autocad drawing file. This is G+1 school building. In this class room, auditorium, social administration management, faculty rooms, toilet for student, toilet for male & female, dining area, kitchen area, service area, and other details are specified in this drawing model. For more details download the Autocad drawing file. Thank you for downloading the AutoCAD drawing file and other CAD program files from our website.
Uploaded by:

