20x10m house plan is given in this Autocad drawing file.Download now.
Description
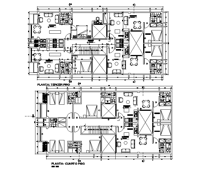
20x10m house plan is given in this Autocad drawing file. In this plan four houses are available. These houses are consists of kitchen, dining area, master bedroom, common toilet, and living area. For more details download the Autocad drawing file. Thank you for downloading the AutoCAD drawing file and other CAD program files from our website.
Uploaded by:

