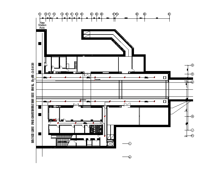
Commercial Complex Lay-out
Description
Commercial Complex Lay-out detail in Entrance, Stairs To Ticket Hall, Escalator To Ticket Hall, Handicap & personal Lift & corridors, Control Gates, Automatic ticket Machine, Master Room, Communication Room(Signaling), Rescue Team Duct, Spriniker Pump Room, reserve Area.
Uploaded by:
Priyanka
Patel

