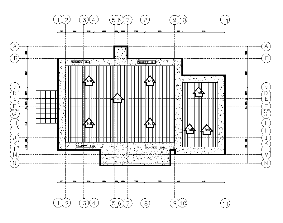
Roof layout of 40x26 house plan is given in this Autocad drawing file. Download now.
Description
Roof layout of 40x26 house plan is given in this Autocad drawing file. This is G+1 house plan. This ground floor consists of garage, shed with attached water closet, gym, laundry, common toilet, store room, living area, dining hall, store room, kitchen corridor and master bedroom with attached toilet. This first floor consists of master bedroom with attached wash room & balcony, lounge area, bar, bedroom with attached toilet, kid’s room, guest room, studio room, and summer hut. For more details download the Autocad file. Thank you for downloading the AutoCAD drawing file and other CAD program files from our website.
Uploaded by:

