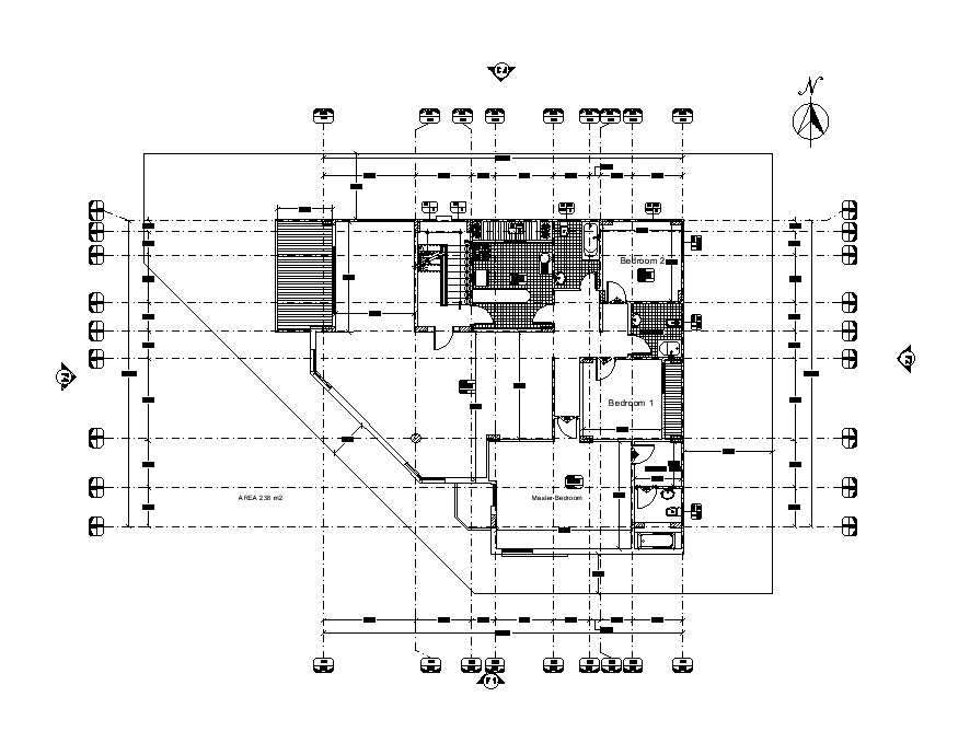
16x14m apartment first floor plan is given in this Autocad drawing file. Download now.
Description
16x14m apartment first floor plan is given in this Autocad drawing file. This is G+1 apartment building. In this plan bedroom with attached bathroom, guest room, kid’s room, and common toilet is mentioned. For more details download the Autocad drawing file. Thank you for downloading the Autocad drawing file and other CAD program files.
Uploaded by:

