6x20m Single family housing floor plan is given in this Autocad drawing file. Download now.
Description
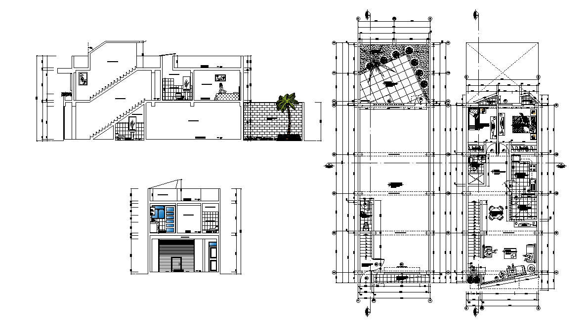
6x20m Single family housing floor plan is given in this Autocad drawing file. In this section view and elevation is given. In this living hall, dining room, patio, kitchen, master bedroom with attached toilet, guest room with balcony and portico are available. Other details are given in this model. Download the 2D Autocad DWG drawing file. Thank you for downloading the Autocad file and other CAD program files from our website.
Uploaded by:

