11x24m Residential House Plan DWG AutoCAD Layout for Architects
Description
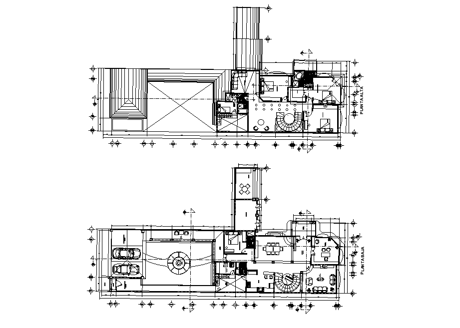
This AutoCAD DWG file presents a detailed 11×24 meter duplex house plan, ideal for architects, engineers, and residential designers. The ground floor includes a small office, a car parking area, a laundry, a kitchen, a dining hall, a living area, a common toilet, a breakfast dining space, and a master bedroom with an attached bathroom. The first floor features a master bedroom with an attached bathroom, a kid’s room with an attached toilet, a guest room, a common toilet, and a family lounge. This comprehensive plan helps professionals visualize layouts, optimize space usage, and accurately plan residential projects for construction or renovation purposes.
Uploaded by:

