28x33m hospital floor plan DWG for AutoCAD download
Description
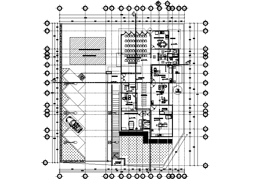
28x33m multi specialty hospital plan is given in this Autocad drawing file. This single story hospital building. The length and breadth of the plan is 28m and 33m respectively. This is general hospital building plan and requirements of details are given in this drawing model. This plan consists of scan room, xray room, rmajor & minor operation theatre, consulting room, reception, waiting area, patient’s room, nurse station and other details are given in this drawing model. For more details download the Autocad DWG drawing file. Thank you for downloading the Autocad drawing file and other CAD program files from our website.
Uploaded by:
