Communal goods building elevation is given in this Autocad drawing file. Download now.
Description
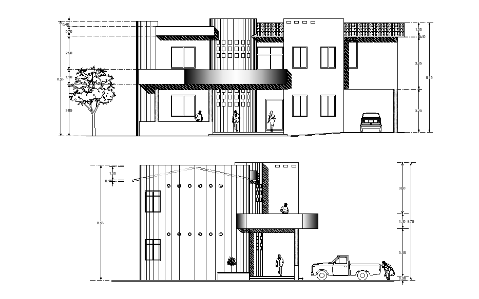
Communal goods building elevation is given in this Autocad drawing file. Total height of the building is 8.55m. This is G+1 building and car parking is available in the ground floor. For more details download the Autocad DWG drawing file. Thank you for downloading the Autocad drawing file and other CAD program files from our website.
Uploaded by:

