14X11m house plan is given in this Autocad drawing file. Download now.
Description
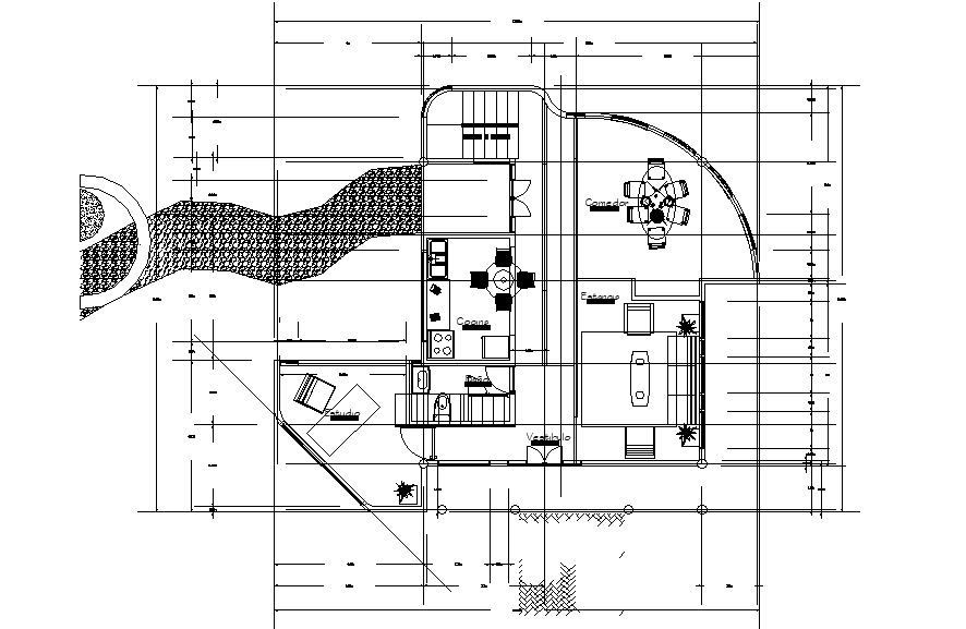
14X11m house plan is given in this Autocad drawing file. This is G+1 home building. This plan consists of master bedroom with attached toilet, common bathroom, kid’s room, kitchen, dining and other details are given. For more details download the Autocad DWG drawing file. Thank you for downloading the Autocad drawing file and other CAD program files from our website.
Uploaded by:

