Digestion chamber of 18x17m house plan toilet is given in this Autocad drawing file.Download now.
Description
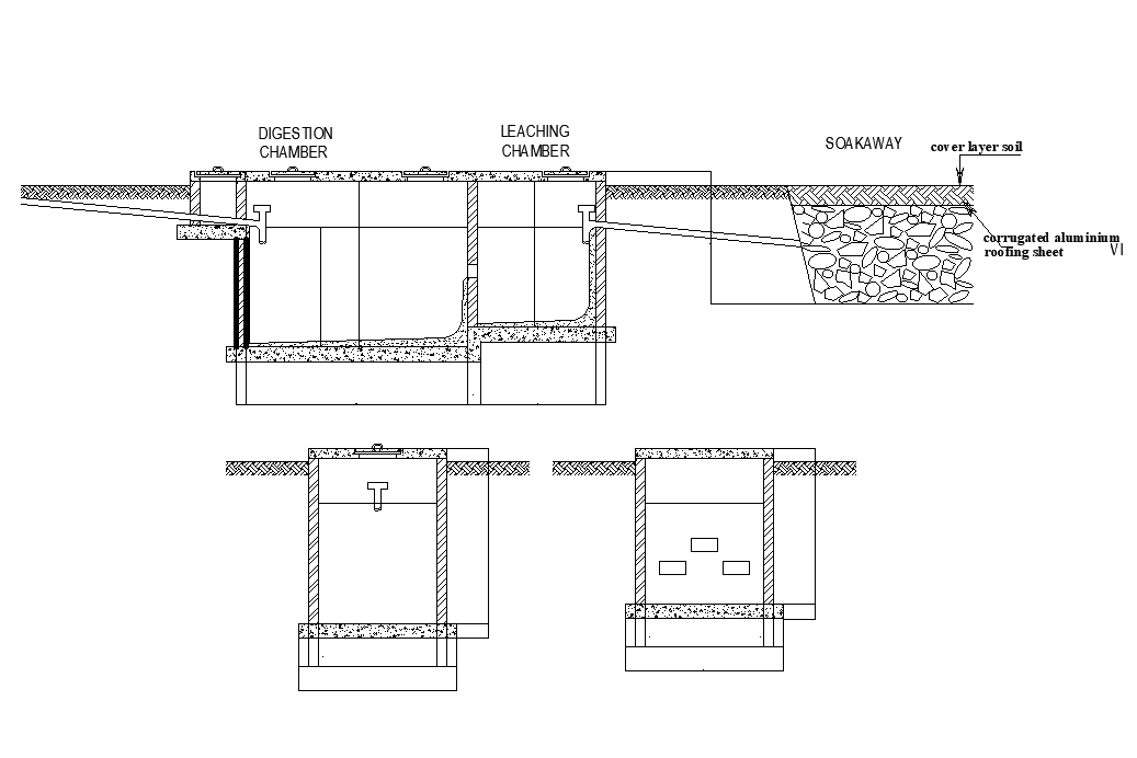
Digestion chamber of 18x17m house plan toilet is given in this Autocad drawing file. Leaching chamber detail is given in this drawing. Inspection chambers, 100mm pvc main soil pipe to septic tank, shallow seal trap, gully trap, and other details are given in this drawing model. For more details download the Autocad drawing file. Thank you for downloading the Autocad drawing file and other CAD program files from our website.
File Type:
DWG
File Size:
2.5 MB
Category::
Dwg Cad Blocks
Sub Category::
Sanitary CAD Blocks And Model
type:
Gold
Uploaded by:

