Layout of 100x25m hospital plan is given in this Autocad drawing file.Download now.
Description
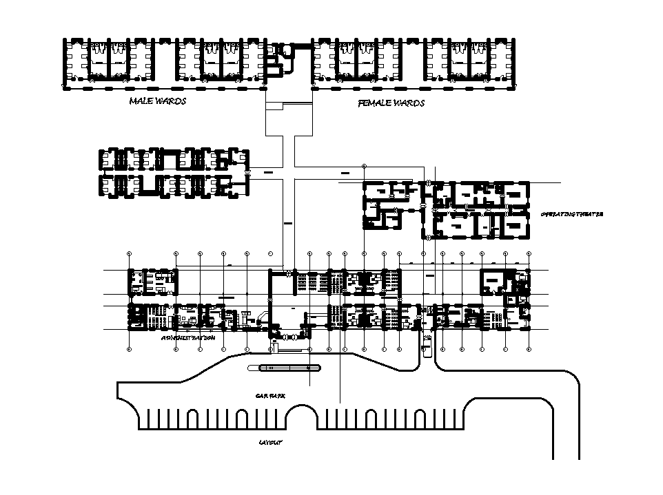
Layout of 100x25m hospital plan is given in this Autocad drawing file. This is general hospital building. Library, ICT office, male lavatory, female lavatory, conference room, manager, secretary room, office room, waiting area, OPD, reception, consulting rooms, diagnostic laboratory, dispensary, pharmacy and other details are given in this drawing model. For more details download the Autocad drawing file. Thank you for downloading the Autocad drawing file and other CAD program files from our website.
Uploaded by:

