32x16m ground floor church plan is given in this Autocad drawing file. Download now.
Description
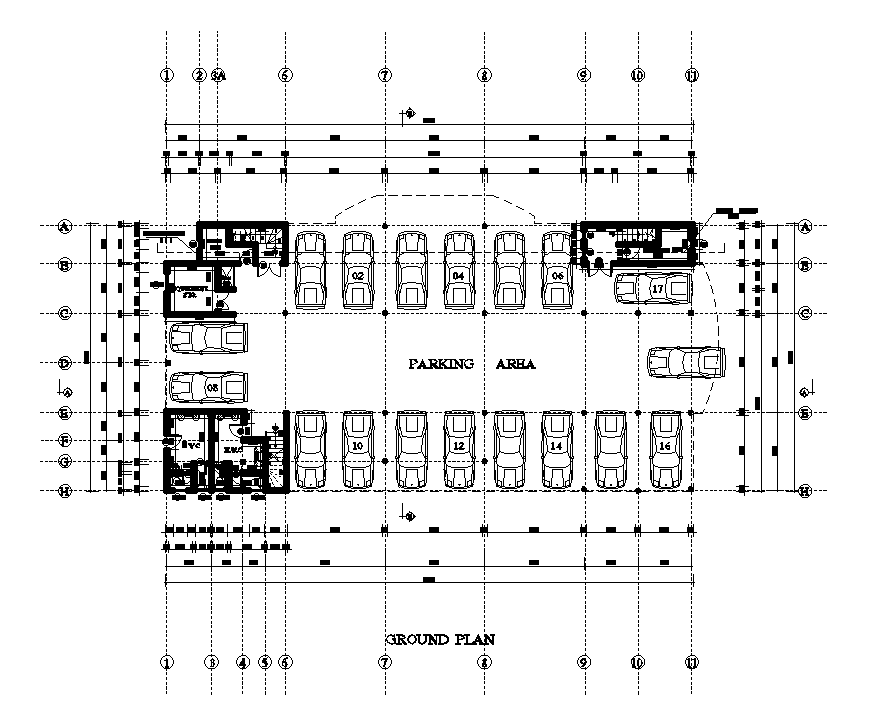
32x16m ground floor church plan is given in this Autocad drawing file. This is G+2 church building. In this ground floor car parking, common water closet for male & female, equipment store, tool store and other details are given. For more details download the Autocad drawing file. Thank you for downloading the Autocad drawing file and other CAD program files from our website.
Uploaded by:

