13x12m multifamily house plan is given in this Autocad drawing file. Download now.
Description
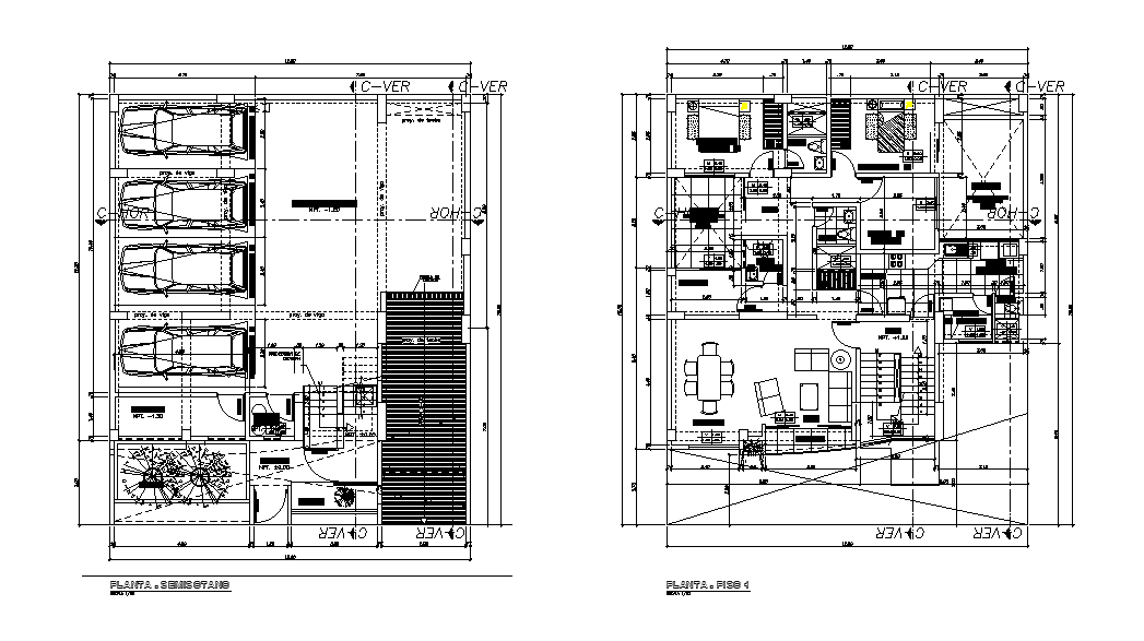
13x12m multifamily house plan is given in this Autocad drawing file. This is G+4 apartment building. Car parking is available in the ground floor. In this plan master bedroom with attached toilet, kid’s bedroom, kitchen, dining, study room, common toilet, curato service, outside toilet and other details are given. For more details download the Autocad file. Thank you for downloading the Autocad file and other CAD program files from our website.
Uploaded by:

