Minimarket office plan is given in this Autocad drawing file. This is G+1 office building. Download now.
Description
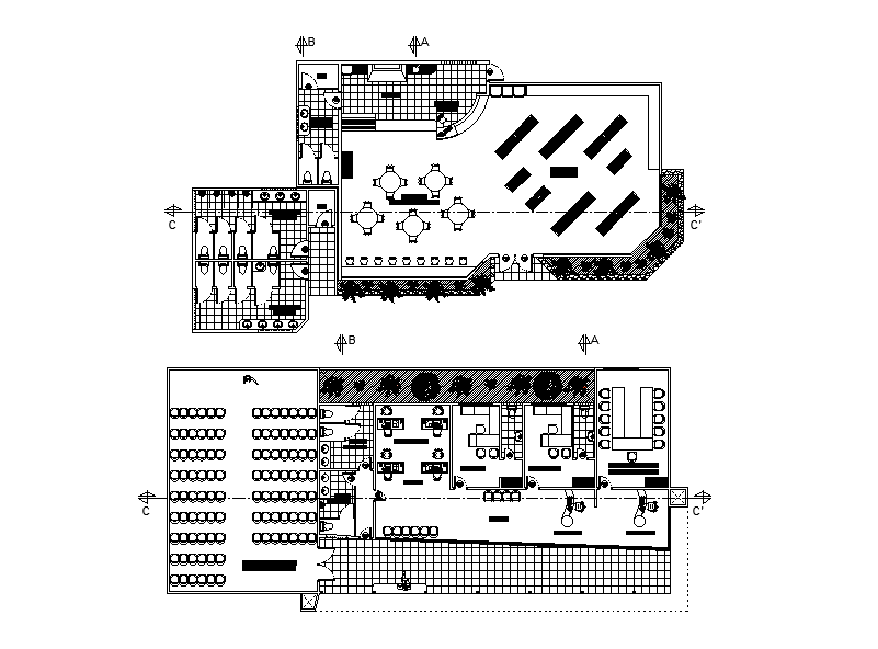
Minimarket office plan is given in this Autocad drawing file. This is G+1 office building. Director room with attached toilet, office room, secretary room with attached toilet, reunion hall, conference hall, cafeteria, common toilet, exhibition area and other details are given in this model. For more details download the Autocad file. Thank you for downloading the Autocad file and other CAD program files from our website.
Uploaded by:

