Section and elevation of 16x7m office plan is given in this Autocad drawing file. Download now.
Description
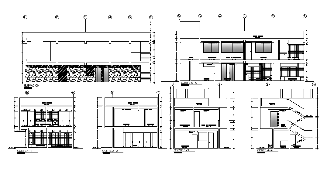
Section and elevation of 16x7m office plan is given in this Autocad drawing file. Total height of the building is 8.10m. This is G+1 office building. This plan consists of reception area, waiting room, office rooms, common toilet for male & female, computer room, manager room, assistant room and other details are given in this drawing model. For more details download the Autocad file. Thank you for downloading the Autocad file and other CAD program files from our website.
Uploaded by:

