Electrical layout of 24x17m fifth floor office plan is given in this Autocad draiwing file. Download now.

Electrical layout of 24x17m fifth floor office plan is given in this Autocad draiwing file.  Download now.
Profile

Uploaded by:

Pavithra

Description
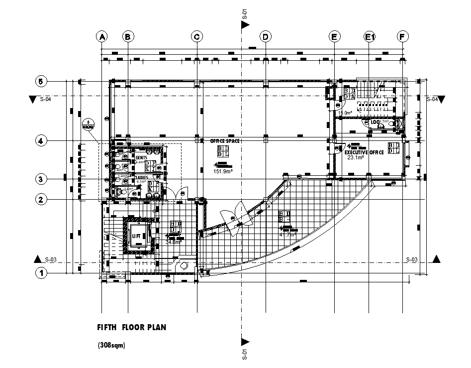
Electrical layout of 24x17m fifth floor office plan is given in this Autocad draiwing file. Total area of the floor is 308sqm. This is G+8 office building. In this floor rest room for male, office space, executive office, ladies toilet, lift and other details are given in this drawing model. For more details download the Autocad file. Thank you for downloading the Autocad file and other CAD program files from our website.
Profile

Uploaded by:

Pavithra

find Latest

Related Files