7x20m house plan is given in this Autocad drawing model. Download now.
Description
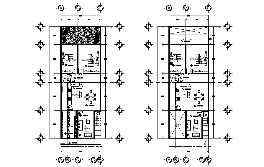
7x20m house plan is given in this Autocad drawing model. This is G+1 house building. Car parking, living hall, kitchen, dining room, common toilet, garden, master bedroom and guest room is available. For more details download the Autocad file. Thank you for downloading the Autocad file and other CAD program files from our website.
Uploaded by:

