13x10m administrative office plan is given in this Autocad drawing model. Download now.
Description
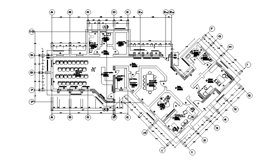
13x10m administrative office plan is given in this Autocad drawing model. This is single story administrative building. Reception area, waiting area, small meeting room, office rooms, director room, secretary room, and other details are given in this plan. For more details download the Autocad file. Thank you for downloading the Autocad file and other CAD program files from our website.
Uploaded by:

