Office cum house plan is given in this 2D Autocad DWG drawing model. Download now.
Description
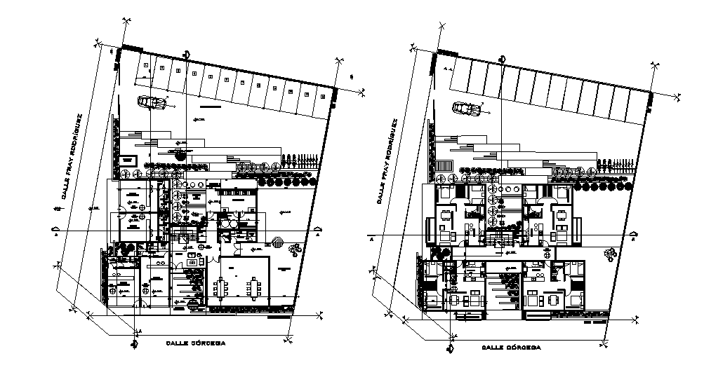
Office cum house plan is given in this 2D Autocad DWG drawing model. This is G+3 office cum house building. In the ground floor, the office plan, office rooms, local commercial shops, conference room, car parking and other details are given in this model. In the other floor 4 houses are available with 2bhk. These houses are consists of living area, dining, kitchen, master bedroom, kid’s room and common toilet. For more details download the Autocad file. Thank you for downloading the Autocad file and other CAD program files from our website.
Uploaded by:

