3 different sizes of door plans are given in this Autocad drawing file. Download now.
Description
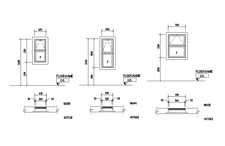
3 different sizes of door plans are given in this Autocad drawing file. In these drawing 3 types of door plans, inside and outside measurements are given. The sizes of doors are mentioned in this drawing model. For more details download the Autocad drawing file. Thank you for downloading the Autocad file and other CAD program files from our website.
File Type:
DWG
File Size:
233 KB
Category::
Dwg Cad Blocks
Sub Category::
Windows And Doors Dwg Blocks
type:
Gold
Uploaded by:

