A staircase flight 2 section view is given in this Autocad drawing file. Download now.
Description
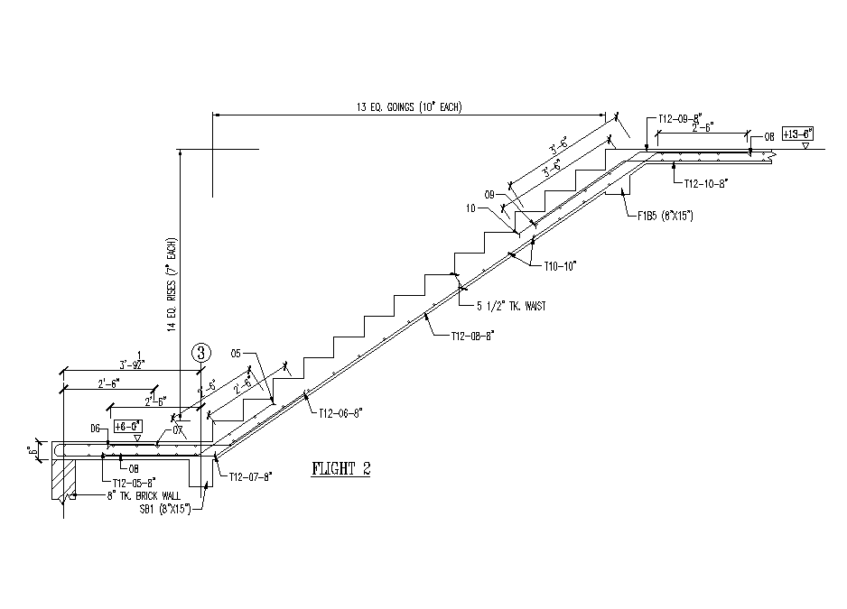
A staircase flight 2 section view is given in this Autocad drawing file. 8” thickness of brick wall is provided. Reinforcement details, column details, and measurements are given in this drawing model. For more details download the Autocad drawing file. Thank you for downloading the Autocad file and other CAD program files from our website.
Uploaded by:

