A section view of the college building is given in this Autocad drawing model. Download now.
Description
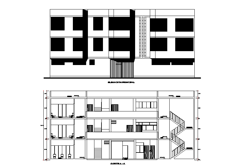
A section view of the college building is given in this Autocad drawing model. This is G+2 college building. The total height of the building is 10.75m. This is plus shape college building. In this plan, class rooms, the director room, principal room, ladies toilet, gent’s toilet, staff room, maintenance office, conference area and other details are given in this model. For more details download the Autocad drawing file. Thank you for downloading the AutoCAD drawing file and other CAD program files from our website.
File Type:
DWG
File Size:
454 KB
Category::
Structure
Sub Category::
Section Plan CAD Blocks & DWG Drawing Models
type:
Gold
Uploaded by:

