8x20m office building plan is given in this Autocad drawing model. Download now.
Description
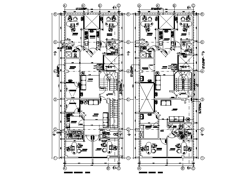
8x20m office building plan is given in this Autocad drawing model. This is G+2 office building. In this office plan, the director room, secretary room, control room, office cabins, conference room, reception, waiting area, junior assistant cabin and other details are given in this drawing model. For more details download the Autocad drawing file. Thank you for downloading the AutoCAD drawing file and other CAD program files from our website.
Uploaded by:

