33x35m ware house plan is given in this Autocad drawing file. Download now.
Description
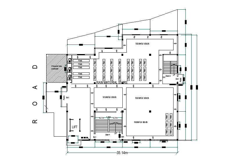
33x35m ware house plan is given in this Autocad drawing file. This is single story building. In this plan, the material stock area, material life, raw material store and other details are given in this Autocad drawing model. For more details download the autocad drawing file. Thank you for downloading the autocad file and other cad program files from our website.
Uploaded by:
