8x17m house plan is given in this Autocad drawing model. Download now.
Description
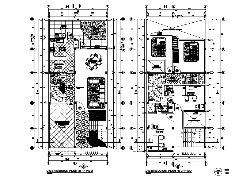
8x17m house plan is given in this Autocad drawing model. This is G+1 villa building. In this ground floor villa plan, the garage, living hall, kitchen, common toilet, dining area, patio, and garden is available. In the first floor plan, master bedroom, kid’s room, living hall, water closet, and office room is available. For more details download the Autocad drawing file. Thank you for downloading the AutoCAD drawing file and other CAD program files from our website.
Uploaded by:

