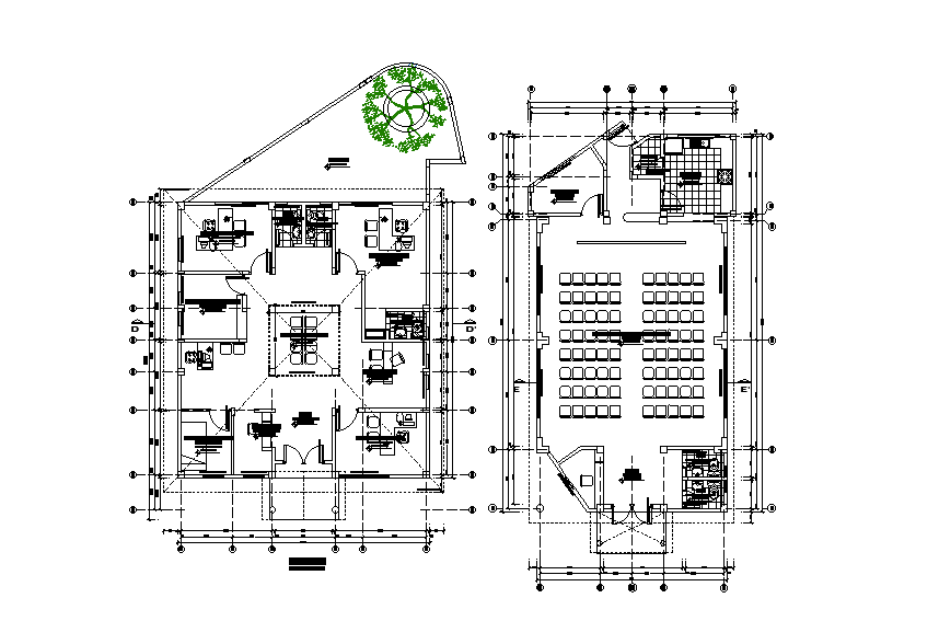
11x14m office cum small auditorium plan is given in this Autocad drawing model. Download now.
Description
11x14m office cum small auditorium plan is given in this Autocad drawing model. This is single story building. In this, the secretary room, auditorium, consultant room, social assistant, informer room and other details are given. For more details download the Autocad drawing file. Thank you for downloading the AutoCAD drawing file and other CAD program files from our website.
Uploaded by:

