92x89m hospital plan is given in this Autocad drawing model. Download now.
Description
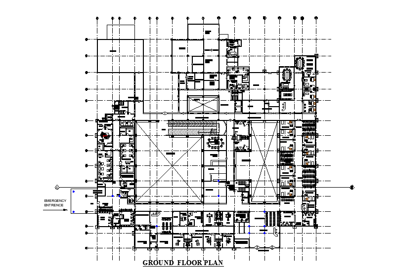
92x89m hospital plan is given in this Autocad drawing model. This is G+5 hospital building. In this hospital plan, dressing room, car parking, the doctor consulting room, nurse station, operation theatre, patient’s wards, x ray room, scan room, machinery room, rest room for doctors, waiting area, reception, pharmacy, account section, and other details are given. For more details download the Autocad drawing file. Thank you for downloading the Autocad files and other CAD program files from our website.
Uploaded by:

