13x14m house plan is given in this Autocad drawing model. Download now.
Description
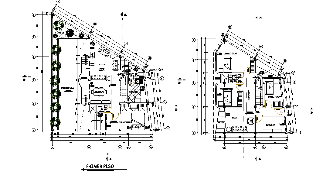
13x14m house plan is given in this Autocad drawing model. This is G+1 villa building. In this villa plan, the living area, kitchen, dining area, patio service and master bedroom is available. In the first floor, the study room, master bedroom with attached toilet, kid’s room, guest room and other details are available. For more details download the Autocad drawing file. Thank you for downloading the Autocad files and other CAD program files from our website.
Uploaded by:

