44x20 Meter Hospital Floor Plan Drawing G plus 7 Layout AutoCAD
Description
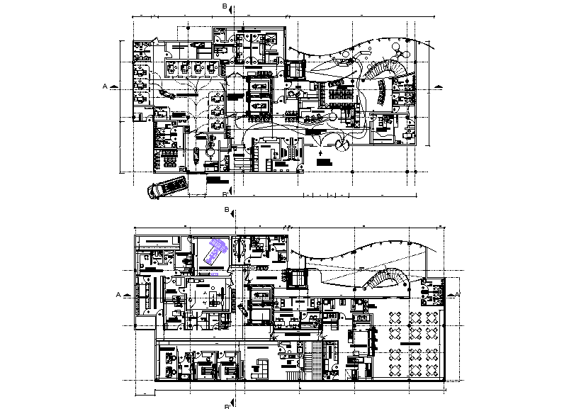
The 44x20 Meter Hospital Floor Plan Drawing is a comprehensive 2D AutoCAD DWG file prepared for a G plus 7 hospital building project. This drawing clearly presents a detailed hospital layout with well-organized functional zoning and circulation planning. The plan includes reception and waiting areas, doctor consulting rooms, nurse stations, minor operation theatre, main operation theatre, obstetric and pediatric demonstration rooms, and men’s demonstration areas. Diagnostic facilities such as X-ray room, scan room, and machinery room are clearly marked, ensuring proper coordination of medical services within the building. Dimensions, wall layouts, and internal movement paths are accurately shown for professional planning use.
This hospital floor plan drawing also includes patient wards, pharmacy, accounts section, doctor rest rooms, and service areas designed to support smooth hospital operations. The DWG file is suitable for architects, civil engineers, healthcare planners, and builders involved in multi-storey hospital projects. It can be easily edited and reused in AutoCAD and coordinated with Revit, 3d Max, and SketchUp workflows. With detailed medical space planning and clear annotations, this drawing supports design development, approval drawings, and construction documentation. The file is available through a Cadbull subscription for professional healthcare CAD planning needs
Uploaded by:

