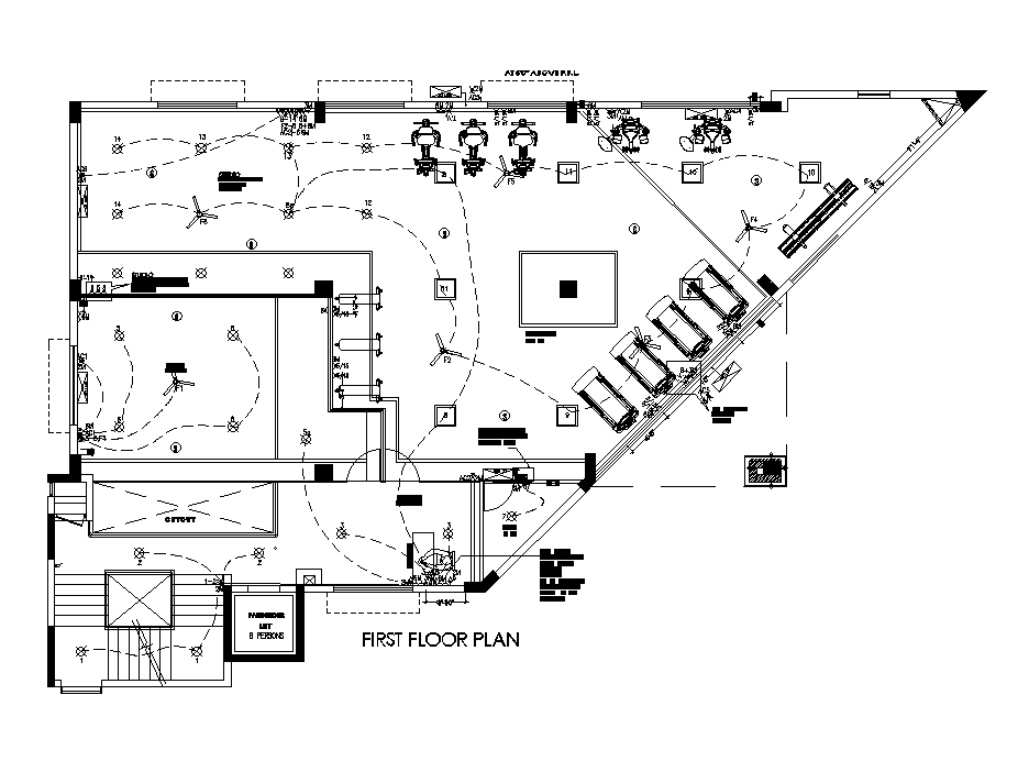
Electrical layout of the second floor plan of the club house is given in this Autocad file. Download now.
Description
Electrical layout of the second floor plan of the club house is given in this Autocad file. In these electrical lines are given around reception, store, crèche, gym and studio. For more details download the Autocad file. Thank you for downloading the Autocad files and other CAD program files from our website.
Uploaded by:

