Ground floor of 39x39m office plan is given in this Autocad drawing file. Download now.

Ground floor of 39x39m office plan is given in this Autocad drawing file.  Download now.
Profile

Uploaded by:

Meera

Description
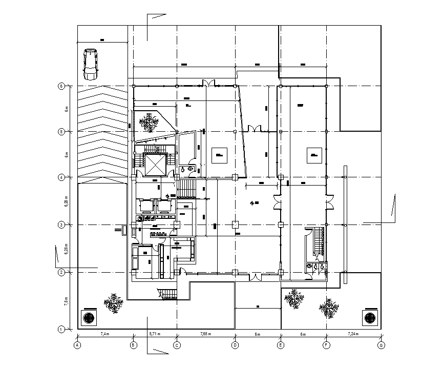
Ground floor of 39x39m office plan is given in this Autocad drawing file. This is G+12 office building. In this office plan, measuring room, switching room, Fire system area, separate rest room for male & female and other details are given. For more details download the Autocad file. Thank you for downloading the Autocad files and other CAD program files from our website.
Profile

Uploaded by:

Meera

find Latest

Related Files

WhatsApp Chat