9x13m office plan is given in this Autocad drawing file. Download now.
Description
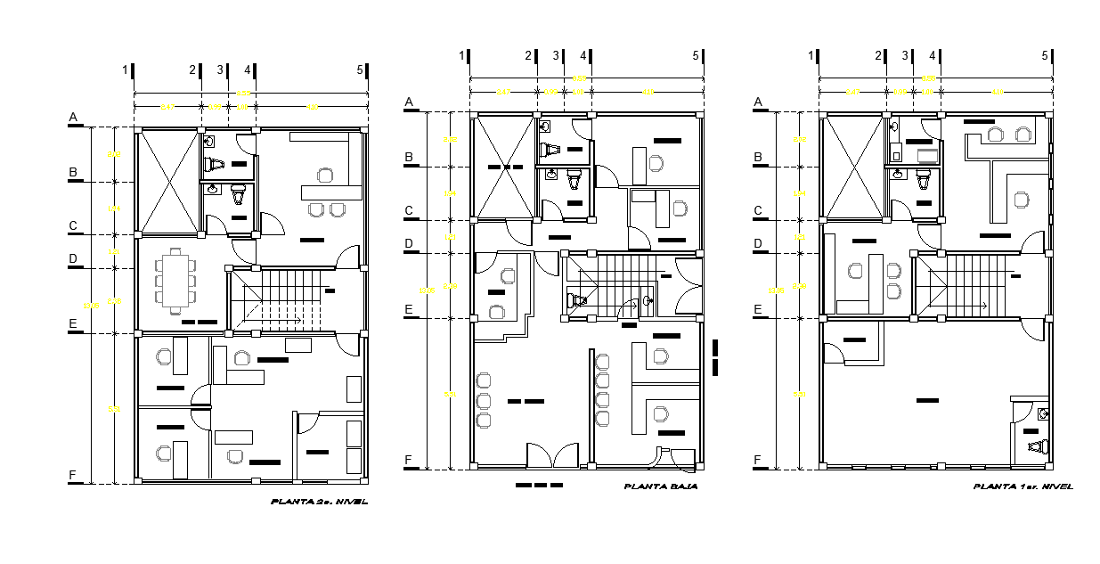
9x13m office plan is given in this Autocad drawing file. This is G+2 office building. In this plan, the director room with attached toilet, secretary room, office cabins, common toilet, reception, waiting room, manager room and other details are given in this file. For more detail download the Autocad file. Thank you for downloading the Autocad file and other CAD program files from our website.
Uploaded by:

