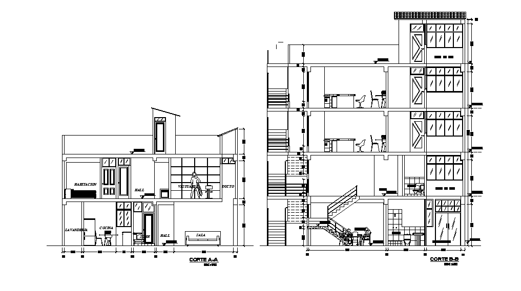
The AutoCAD drawing file presented 4 story building in this file. Download this 2d drawing file.
Description
The AutoCAD drawing file presented 4 story building in this file. cad file having the detail of the G+4 service Apartment Building sectional elevation design which shows the parking lot and 1st to 4th floor 3 BHK residential building with swimming pool design. Thank you for downloading the AutoCAD drawing file and other CAD program files from our website.
Uploaded by:

