Bungalow section detail drawing separated in this cad drawing file. Download 2d autocad drawing file.
Description
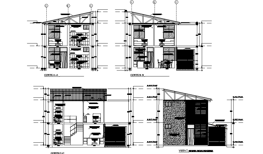
Bungalow section detail drawing separated in this cad drawing file. this file consists of roof section detail, main entrance detail given with shutter drawing in elevation, door window detail, glass window elevation detail, with dimensions and specifications. this can be used by architects and engineers. Download this 2d AutoCAD drawing file.
Uploaded by:

