Residency apartment building section drawing derived in this file. Download 2d autocad drawing file.
Description
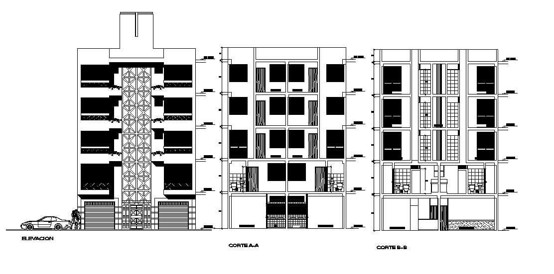
Residency apartment building section drawing derived in this file. which is consists of exterior view, interior view, door window detail, glass window elevation detail, with dimensions and specifications. this is a G+4 story floor level building model design dwg file. Thank you for downloading the Autocad file and other CAD program files from our website.
Uploaded by:

