28x18m hospital plan is given in this Autocad drawing file. Download now.
Description
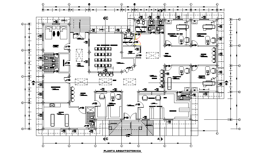
28x18m hospital plan is given in this Autocad drawing file. This is multispecialty hospital building. This is single story hospital building. Admin office, Nurse station, doctor consulting room, rest room, duty doctor rest room, water closet for male & female, reception, waiting area, pharmacy, car parking, emergency ward, and other details are mentioned in this drawing model. For more details download the Autocad drawing file. Thank you for downloading the Autocad drawing file and other CAD program files from our website.
Uploaded by:

