8m height of the two story house building is given in this Autocad drawing file. Download now.
Description
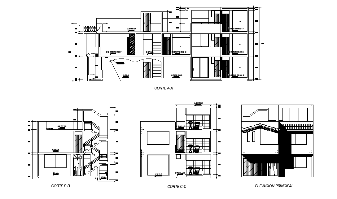
8m height of the two story house building is given in this Autocad drawing file. In this section view and elevation view is given. In this building, the living area, kitchen, guest room, common toilet, patio, dining hall, master bedroom available. For more details download the Autocad drawing file. Thank you for downloading the Autocad drawing file and other CAD program files from our website.
Uploaded by:

