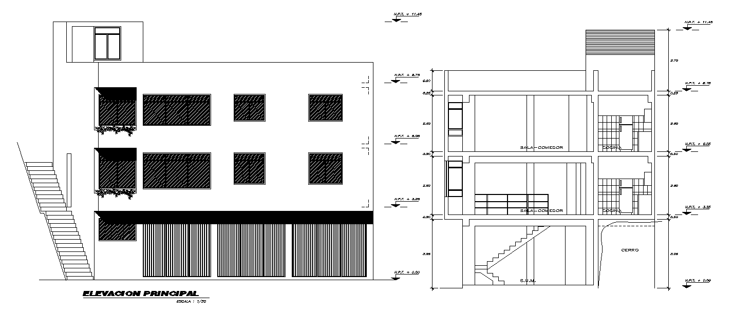
An elevation and section view of 13x10m house building is given in this Autocad drawing file.Download now.
Description
An elevation and section view of 13x10m house building is given in this Autocad drawing file. This is G+2 house building. This house consists of living area, kitchen, dining area, master bedroom, guest room, kid’s room, sturdy room, common toilet and other details are mentioned. For more details download the Autocad drawing file. Thank you for downloading the Autocad drawing file and other CAD program files from our website.
Uploaded by:

