8x23m apartment plan is given in this Autocad drawing file. Download now.
Description
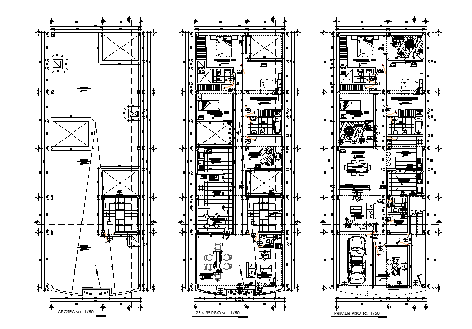
8x23m apartment plan is given in this Autocad drawing file. This is G+2 apartment building. In this plan, the living area, kithchen, dining hall, master bedroom with attached toilet, kid’s room with attached toilet, common toilet, wash area, and guest room is available. For more details download the Autocad drawing file. Thank you for downloading the Autocad drawing file and other CAD program files from our website.
Uploaded by:

