A section view of 6x20m house plan has been given in this Autocad drawing file. Download now.
Description
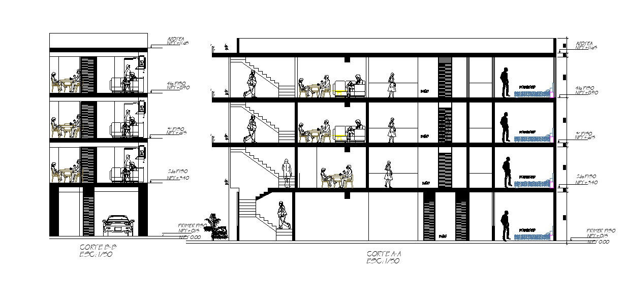
A section view of 6x20m house plan has been given in this Autocad drawing file. This is G+3 house building. In this plan three houses are available. These houses are consists of kitchen, dining area, living hall, study room, patio, master bedroom, guest room, kid’s room and common toilet. For more details download the Autocad drawing file. Thank you for downloading the Autocad drawing file and other CAD program files from our website.
Uploaded by:

