3m height of the academic building section view is given in this Autocad dariwng file. Download now.

3m height of the academic building section view is given in this Autocad dariwng file.  Download now.
Profile

Uploaded by:

Meera

Description
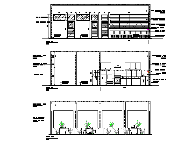
3m height of the academic building section view is given in this Autocad dariwng file. This is single story academic building. In this room details, material details and other details are given. For more details download the Autocad drawing file. Thank you for downloading the Autocad drawing file and other CAD program files from our website.
Profile

Uploaded by:

Meera

find Latest

Related Files

WhatsApp Chat