14x17m hostel is given in this Autocad drawing file. Download now.
Description
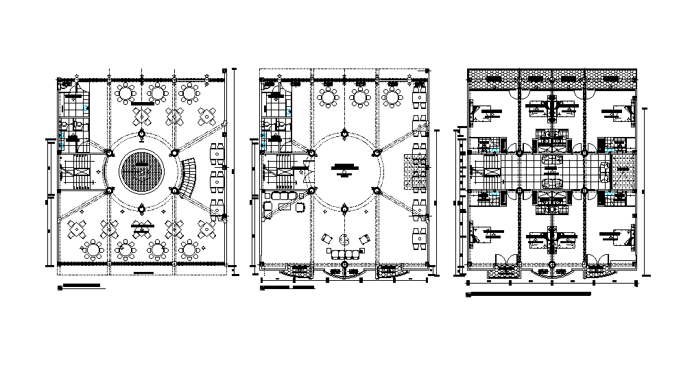
14x17m hostel is given in this Autocad drawing file. This is G+4 hostel building. Ground and first floor is provided for the dining area. Second and third floor is provided for hostel rooms. For more details download the Autocad drawing file. Thank you for downloading the Autocad drawing file and other CAD program files from our website.
Uploaded by:

